Lokal użytkowy Gdańsk Żabianka, Aleja Grunwaldzka
Gdańsk Pokaż na mapie ›
Dodane: Piątek, 16 Styczeń, 2026 07:18
1 200 zł
Szczegóły ogłoszenia
- Kategoria: Biura i lokale / Do wynajęcia
- Przeznaczenie:Biurowe
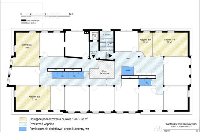
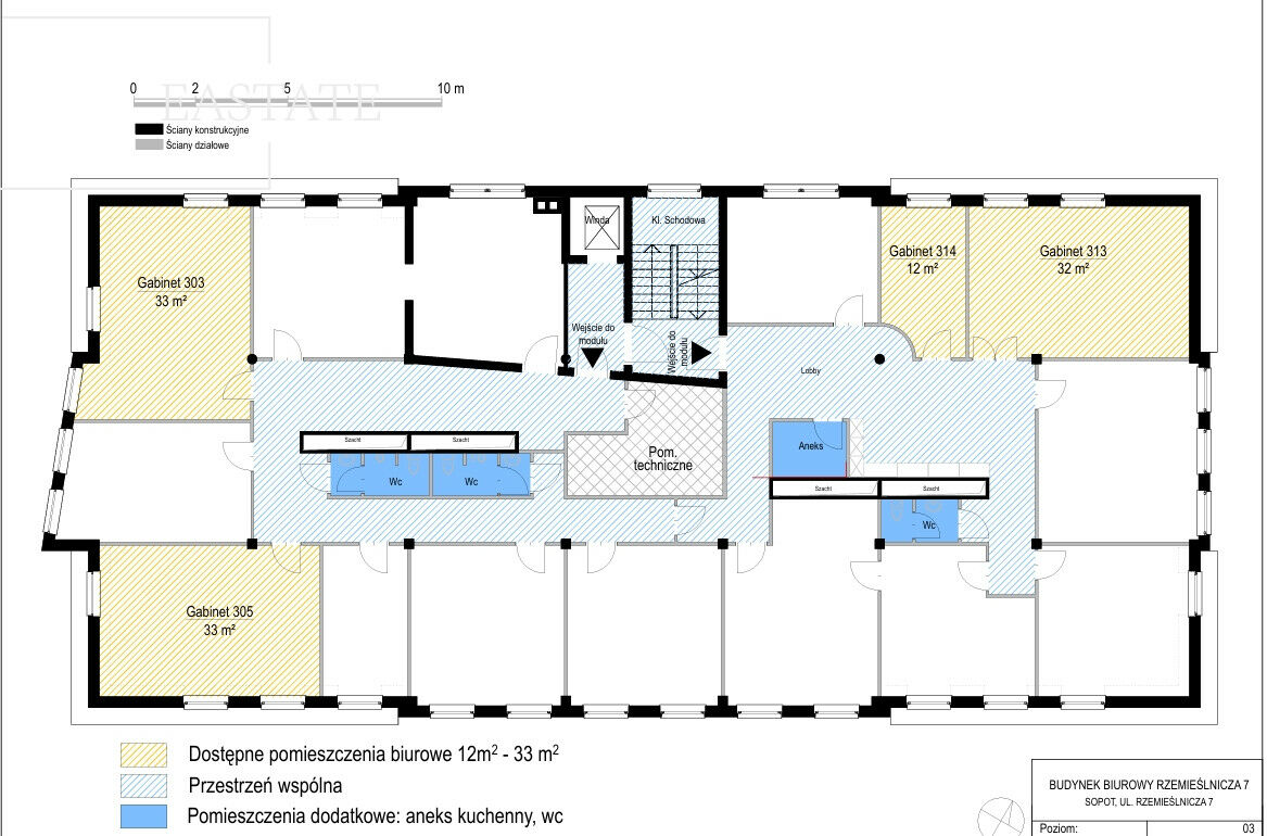
- Powierzchnia:12 m2
- Sprzedaż:Pośrednik
- Cena: 1 200 zł
Opis oferty
Oferta Wynajmu Lokalu Biurowego w Sopocie:Lokalizacja:
Oferujemy do wynajmu komfortowy lokal biurowy o powierzchni 12m², zlokalizowany w Sopocie, w pobliżu stacji SKM Sopot Wyścigi oraz Gdańsk Żabianka.
Doskonała lokalizacja zapewnia łatwy dostęp do komunikacji miejskiej oraz ścieżek rowerowych.
Budynek:
Lokal mieści się w kameralnym, 3-piętrowym budynku biurowym wybudowanym w 2003 roku. Obiekt wyposażony jest w windy, monitoring, system CCTV oraz recepcję, co zapewnia komfort i bezpieczeństwo.
Opis Lokalu:
• Powierzchnia: 12 m²
• Piętro: 3
• Otwierane okna
• Aneks kuchenny oraz łazienki dostępne w strefie wspólnej
• Recepcja z częścią wypoczynkową dla klientów (07:00-19:00)
Czynsz najmu:
• Cena: 100 zł/m² netto
• Czynsz zawiera koszty eksploatacyjne, media (ogrzewanie, woda, energia elektryczna) oraz obsługę recepcji
Dodatkowe opłaty:
• Internet: na własną umowę z operatorem
• Klimatyzacja: rozliczana wg podlicznika
Miejsca parkingowe:
Cena: 200 zł netto/miesiąc za miejsce na parkingu zewnętrznym
Cena: 350 zł netto/miesiąc za miejsce w hali garażowej
Warunki najmu:
• Minimalny okres najmu: 12 miesięcy
• Kaucja: 3-miesięczny czynsz brutto
• Czynsz indeksowany według wskaźnika inflacji
Zalety oferty:
• Całodobowa ochrona oraz monitoring
• Winda i komfortowe warunki pracy
• Bliskość do komunikacji miejskiej oraz terenów rekreacyjnych
• Możliwość elastycznej zmiany powierzchni biurowej
Dodatkowe informacje:
Posiadamy więcej lokali biurowych w tej lokalizacji. Zapraszamy do kontaktu jeśli są Państwo zainteresowanymi innymi powierzchniami.
Zapraszamy do umówienia się na prezentację lokalu!
Kompleksowa obsługa nieruchomości: sprzedaż, wynajem, kredyt i zarządzanie - wszystko w jednym miejscu- zadzwoń i sprawdź naszą ofertę.
Numer oferty: 877 - pokaż numer telefonu -
Sprawdź zainteresowanie tym ogłoszeniem
Wyświetlenia
Data dodania
Ostatnio widziany
Obserwujących
Wysłane zapytania
Odsłony telefonu
Powiadom o podobnych ogłoszeniach
Lokalizacja: Gdańsk
Kategoria: Nieruchomości » Biura i lokale » Do wynajęcia
Cena: od 1000 zł do 1500 zł Powierzchnia : od 10 m2 do 14 m2
Chcę otrzymywać powiadomienia o nowych ofertach
- Wypromuj ogłoszenie
- Zgłoś naruszenie
- Drukuj ulotkę
- Edytuj/usuń ogłoszenie
- Udostępnij ogłoszenie
- Dodaj na Facebook
















